Archivi per la categoria: restauro
Consegna del Progetto Esecutivo di Restauro e Ridestinazione funzionale dell’Istituto Marchiondi Spagliardi a Milano,
Presentazione del Piano Particolareggiato Esecutivo Area Zucchi a Galliate,
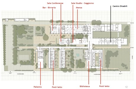
Recupero e Ridestinazione funzionale dell’Istuto Marchiondi Spagliardi di Vittoriano Viganò a Milano come casa dello studente per il Politecnico di Milano – 2007/2012











Devi effettuare l'accesso per postare un commento.